2Fレンタルオフィス
完全個室タイプ 4室
2Fレンタルオフィス 仕様
- 天井高:2,280mm
- 個別錠有り
- 照明:個別、空調:共有
- 備付什器:テーブル+チェア定員分、ブラインド
- 有線LAN引込み済み+電話引込み可
※ 定員以上でのご利用の場合
管理費として5,500円/人(税込)ご負担いただきます。
光熱費は入居者一人追加につき、550円(税込)/月 いただきます。
※ 定期建物賃貸借契契約(5年契約)
※ 別途火災保険の契約が必須
※ 入会金:各室 25,500円(税込)
タイプ名 | 人数 | 面積 | 料金 | その他 | 空き状況 |
---|---|---|---|---|---|
2F 個室4 | 定員3名 | 7.74㎡ |
利用料 75,075円/月(税込) 管理費 16,500円/月(税込) 光熱費:1,650円(税込) 月額合計 93,225円/月(税込) |
窓あり | 満室 |
2F 個室5・6 | 定員3名 | 8.66㎡ |
利用料 98,175円/月(税込) 管理費 16,500円/月(税込) 光熱費:1,650円(税込) 月額合計 116,325円/月(税込) |
窓あり | 満室 |
2F 個室7 | 定員3名 | 8.66㎡ |
利用料 90,090円/月(税込) 管理費 16,500円/月(税込) 光熱費:1,650円(税込) 月額合計 93,390円/月(税込) |
窓あり | 満室 |
左右にスクロールしてご覧ください。
半個室タイプ 3室


タイプ名 | 人数 | 面積 | 料金 | その他 | 空き状況 |
---|---|---|---|---|---|
2F 個室1・2 | 定員2名 | 4.72㎡ |
利用料 46,200円/月(税込) 管理費 11,000円/月(税込) 光熱費:1,100円(税込) 月額合計 58,300円/月(税込) |
窓あり |
11月下旬より入居可能 上部メニューより お問い合わせ受付中! |
2F 個室3 | 定員2名 | 5.85㎡ |
利用料 51,975円/月(税込) 管理費 11,000円/月(税込) 光熱費:1,100円(税込) 月額合計 64,075円/月(税込) |
窓あり | 満室 |
左右にスクロールしてご覧ください。
ブースタイプ 7席
レンタルオフィス 2Fブース席仕様
- 天井高:2,280mm、壁高:1.3m
- 照明・空調 共有
- 備付什器:テーブル+チェア 1セット
※ 光熱費は入居者一人につき、550円(税込)/月 いただきます。
※ 定期建物賃貸借契契約(5年契約)
※ 別途火災保険の契約が必須
※ 入会金:各ブース 16,500円(税込)
ブースA席 3席

利用料 23,100円/月(税込)
管理費 5,500円/月(税込)
光熱費:550円(税込)
月額合計 29,150円/月(税込)
ブースA席 3席

利用料 28,875円/月(税込)
管理費 5,500円/月(税込)
光熱費:550円(税込)
月額合計 34,925円/月(税込)
ブースA席 3席

利用料 32,340円/月(税込)
管理費 5,500円/月(税込)
光熱費:550円(税込)
月額合計 38,390円/月(税込)
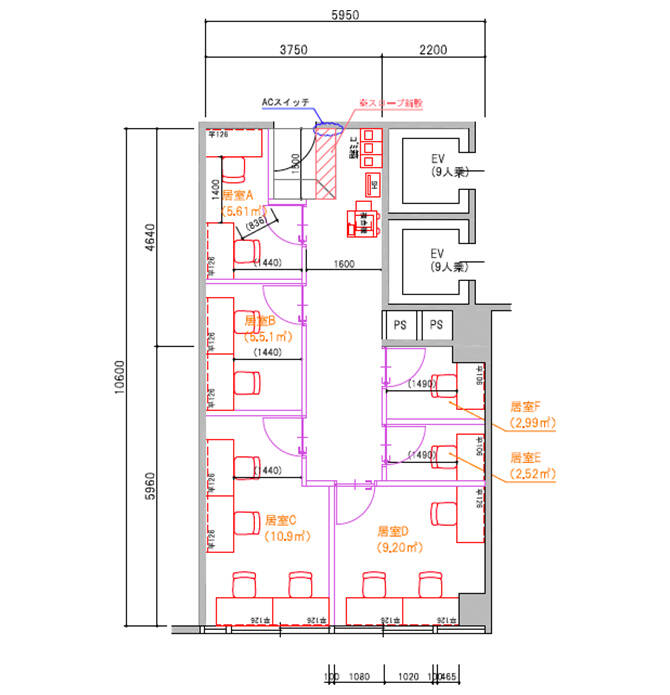
3Fレンタルオフィス
完全個室タイプ 6室
3FレンタルオフィスI 仕様
- 天井高:2,290mm
- 個別錠有り
- 照明:個別、空調:共有
- 備付什器:テーブル+チェア
※ 定員以上でのご利用の場合
管理費として5,500円/人(税込)ご負担いただきます。
光熱費は入居者一人追加につき、550円(税込)/月 いただきます。
※ 定期建物賃貸借契契約(5年契約)
※ 別途火災保険の契約が必須
※ 入会金:各室 27,500円(税込)

タイプ名 | 人数 | 面積 | 料金 | その他 | 空き状況 |
---|---|---|---|---|---|
3F 個室A室 | 定員2名 | 5.61㎡ |
利用料 57,750円/月(税込) 管理費 11,000円/月(税込) 光熱費:1,100円(税込) 月額合計 69,850円/月(税込) |
10月中旬より入居可能 上部メニューより お問い合わせ受付中! |
|
3F 個室B室 | 定員2名 | 5.51㎡ |
利用料 55,440円/月(税込) 管理費 11,000円/月(税込) 光熱費:1,100円(税込) 月額合計 67,540円/月(税込) |
満室 | |
3F 個室C室 | 定員4名 | 10.90㎡ |
利用料 106,260円/月(税込) 管理費 22,000円/月(税込) 光熱費:2,200円(税込) 月額合計 130,460円/月(税込) |
窓あり | 満室 |
3F 個室D室 | 定員3名 | 9.20㎡ |
利用料 95,865円/月(税込) 管理費 16,500円/月(税込) 光熱費:1,650円(税込) 月額合計 114,015円/月(税込) |
満室 | |
3F 個室E室 | 定員1名 | 2.52㎡ |
利用料 34,650円/月(税込) 管理費 5,500円/月(税込) 光熱費:550円(税込) 月額合計 40,700円/月(税込) |
満室 | |
3F 個室 F室 | 定員1名 | 2.99㎡ |
利用料 40,425円/月(税込) 管理費 5,500円/月(税込) 光熱費:550円(税込) 月額合計 46,475円/月(税込) |
満室 |
左右にスクロールしてご覧ください。
完全個室タイプ 2室
3FレンタルオフィスII 仕様
- 天井高:2,440mm
- 個別錠有り
- 照明:個別、空調:共有
- 備付什器:テーブル+チェア
- Wi-Fi無料、有線LAN引き込み済み+電話引込み可
- トイレ・流し台フロアー共用
※ 定員以上でのご利用の場合
管理費として5,500円/人(税込)ご負担いただきます。
光熱費は入居者一人追加につき、550円(税込)/月 いただきます。
※ 定期建物賃貸借契契約(5年契約)
※ 別途火災保険の契約が必須
※ 入会金:各室 27,500円(税込)
タイプ名 | 人数 | 面積 | 料金 | その他 | 空き状況 |
---|---|---|---|---|---|
3F個室G室 | 定員2名 | 7.68㎡ |
利用料 68,145円/月(税込) 管理費 11,000円/月(税込) 光熱費:1,100円(税込) 月額合計 80,245円/月(税込) |
窓あり | 満室 |
3F 個室H室 | 定員2名 | 7.53㎡ |
利用料 68,145円/月(税込) 管理費 11,000円/月(税込) 光熱費:1,100円(税込) 月額合計 80,245円/月(税込) |
満室 |
左右にスクロールしてご覧ください。
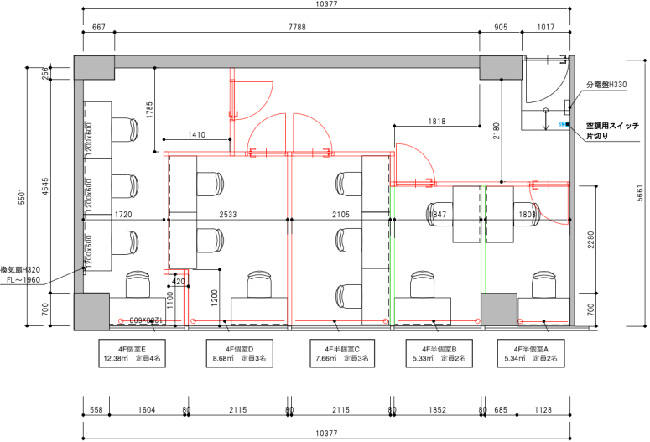
4Fレンタルオフィス
2020年7月完成
半個室タイプ 3室
4Fレンタルオフィス共通仕様
- 天井高:2,270mm(半個室のみ:壁高1,970mm)
- 個別錠有り
- 照明:個別、空調:共有
- 備付什器:テーブル+チェア、ブラインド
- Wi-Fi無料、有線LAN引き込み済み
- トイレ・流し台フロアー共用
※ 定員以上でのご利用の場合
管理費として5,500円/人(税込)ご負担いただきます。
光熱費は入居者一人追加につき、550円(税込)/月 いただきます。
※ 定期建物賃貸借契契約(5年契約)
※ 別途火災保険の契約が必須
※ 入会金:各室 27,500円(税込)

タイプ名 | 人数 | 面積 | 料金 | その他 | 空き状況 |
---|---|---|---|---|---|
4F 半個室1 | 定員2名 | 5.34㎡ |
利用料 46,750円/月(税込) 管理費 11,000円/月(税込) 光熱費:1,100円(税込) 月額合計 58,850円/月(税込) |
窓あり | 満室 |
4F 個室2 | 定員2名 | 5.33㎡ |
利用料 50,820円/月(税込) 管理費 11,000円/月(税込) 光熱費:1,100円(税込) 月額合計 62,920円/月(税込) |
窓あり | 満室 |
4F 半個室3 | 定員3名 | 7.66㎡ |
利用料 62,370円/月(税込) 管理費 16,500円/月(税込) 光熱費:1,650円(税込) 月額合計 80,520円/月(税込) |
窓あり | 満室 |
左右にスクロールしてご覧ください。
完全個室タイプ 2室
タイプ名 | 人数 | 面積 | 料金 | その他 | 空き状況 |
---|---|---|---|---|---|
4F半個室4 | 定員3名 | 8.68㎡ |
利用料 97,845円/月(税込) 管理費 16,500円/月(税込) 光熱費:1,650円(税込) 月額合計 115,995円/月(税込) |
窓あり 電話引き込みOK |
満室 |
4F 半個室5 | 定員4名 | 12.38㎡ |
利用料 102,795円/月(税込) 管理費 22,000円/月(税込) 光熱費:2,200円(税込) 月額合計 126,995円/月(税込) |
窓あり 換気扇あり |
満室 |
左右にスクロールしてご覧ください。
8Fレンタルオフィス
完全個室タイプ 5室
8Fレンタルオフィス仕様
- 天井高:2,200mm
- 個別錠有り
- 照明:個別、空調:共有
- 壁の材質 スチールパーテーション
- 備付什器:テーブル+チェア
- 電話線引き込みOK(メタル回線引き込み不可)
※ 定員以上でのご利用の場合
管理費として5,500円/人(税込)ご負担いただきます。
光熱費は入居者一人追加につき、550円(税込)/月 いただきます。
※ 定期建物賃貸借契契約(5年契約)
※ 別途火災保険の契約が必須
※ 入会金:各室 27,500円(税込)

タイプ名 | 人数 | 面積 | 料金 | その他 | 空き状況 |
---|---|---|---|---|---|
8F 個室1 | 定員2名 | 5.15㎡ |
利用料 57,750円/月(税込) 管理費 11,000円/月(税込) 光熱費:1,100円(税込) 月額合計 69,850円/月(税込) |
満室 | |
8F 個室2 | 定員2名 | 5.10㎡ |
利用料 55,440円/月(税込) 管理費 11,000円/月(税込) 光熱費:1,100円(税込) 月額合計 67,540円/月(税込) |
満室 | |
8F 個室3 | 定員4名 | 9.86㎡ |
利用料 91,245円/月(税込) 管理費 22,000円/月(税込) 光熱費:2,200円(税込) 月額合計 115,445円/月(税込) |
満室 | |
8F 個室4 | 定員3名 | 8.61㎡ |
利用料 91,245円/月(税込) 管理費 16,500円/月(税込) 光熱費:1,650円(税込) 月額合計 109,395円/月(税込) |
窓あり | 満室 |
8F 個室5 | 定員1名 | 3.34㎡ |
利用料 45,045円/月(税込) 管理費 5,500円/月(税込) 光熱費:550円(税込) 月額合計 51,950円/月(税込) |
満室 |
左右にスクロールしてご覧ください。
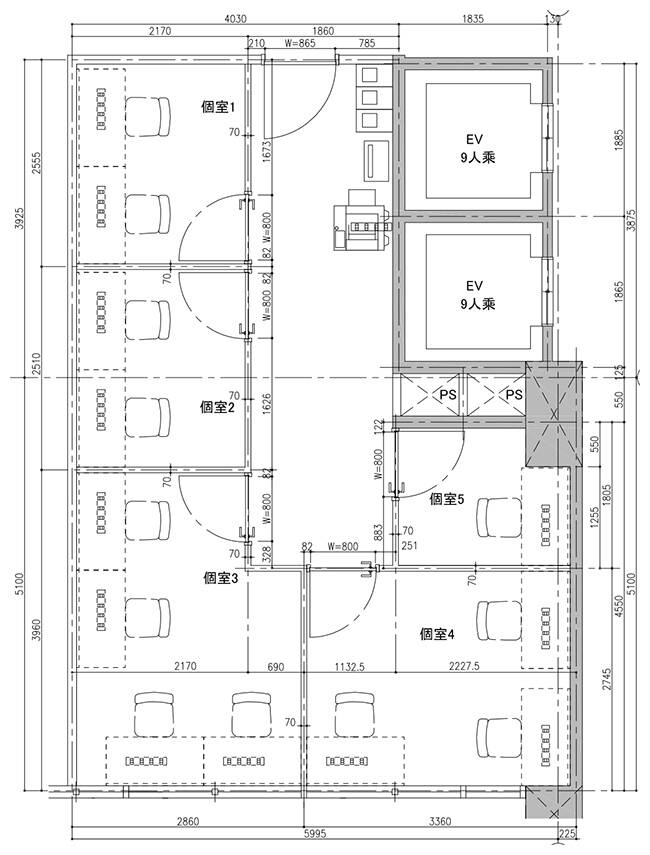
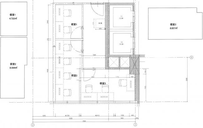
9Fレンタルオフィス
完全個室タイプ 3室
9Fレンタルオフィス仕様
- 天井高:2,230mm
- 個別錠有り
- 照明・空調:個別/共用未定
- 備付什器:テーブル+チェア
- Wi-Fi無料、有線LAN引き込み済み+
- 電話線引き込みOK(メタル回線引き込み不可)
- トイレ・流し台フロアー共用
※ 定員以上でのご利用の場合
管理費として5,500円/人(税込)ご負担いただきます。
光熱費は入居者一人追加につき、550円(税込)/月 いただきます。
※ 定期建物賃貸借契契約(5年契約)
※ 別途火災保険の契約が必須
※ 入会金:各室 27,500円(税込)
タイプ名 | 人数 | 面積 | 料金 | その他 | 空き状況 |
---|---|---|---|---|---|
9F 個室1 | 定員2名 | 4.73㎡ |
利用料 57,750円/月(税込) 管理費 11,000円/月(税込) 光熱費:1,100円(税込) 月額合計 69,850円/月(税込) |
満室 | |
9F 個室2 | 定員3名 | 8.09㎡ |
利用料 88,935円/月(税込) 管理費 16,500円/月(税込) 光熱費:1,650円(税込) 月額合計 107,085円/月(税込) |
窓あり | 満室 |
9F 個室3 | 定員3名 | 8.85㎡ |
利用料 86,625円/月(税込) 管理費 16,500円/月(税込) 光熱費:1,650円(税込) 月額合計 106,590円/月(税込) |
窓あり | 満室 |
左右にスクロールしてご覧ください。